

 |
 |
Производитель: Bosch (Германия).
BOSCH Therm 4000 O WR 15-2 B – газовый водонагреватель, работающий на основе медного теплообменника, выполненного без использования олова и свинца.
Водонагреватель оснащен панелью управления, в состав которой входят регулятор мощности, регулятор температуры (расхода) воды, индикатор состояния батареи, индикатор состояния горелки, которая упрощает эксплуатацию газовой колонки.
Атмосферная газовая горелка нагревателя, выполненная из нержавеющей стали, может работать со сжиженным газом. Установка нужной мощности выполняется с помощью регулируемой газовой арматуры. Водонагреватель включается автоматически – при открытии водопроводного крана. Розжиг выполняется с помощью батареек.
Водяная арматура выполнена из усиленного стекловолокном полиамида, пригодного для дальнейшей переработки.
Преимущества управления нагревателем Therm 4000 O WR 15-2 B: раздельная регулировка мощности и максимального расхода воды, постоянный проток воды при переменном давлении напора воды, ионизационный контроль пламени, ограничитель температуры на выходе горячей воды, встроенное устройство контроля тяги.
Автоматика выполняет ряд функций: модуляция мощности в зависимости от расхода воды, регуляция расхода воды для поддержания температуры воды при изменениях давления в водопроводе, индикация состояния нагревателя.
Водонагреватель Therm 4000 O WR 15-2 B поставляется в собранном виде, в коробке из прочного картона. В комплект поставки входят техническая документация, монтажный комплект для присоединения водонагревателя к контуру ГВС, комплект крепежа, две батарейки типа R на 1,5В.
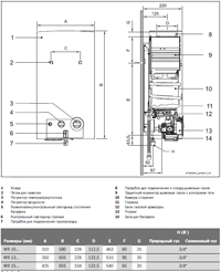
Пояснения к обозначениям:
W - Газовый проточный водонагреватель.
R - Постоянная регулировка мощности.
10 - Максимальный расход воды (л/мин).
-2 - Версия 2.
B- с розжигом от батареек.
Особенности:
-
медный теплообменник, не содержащий сплавов олова/свинца;
-
атмосферная газовая горелка из нержавеющей стали с возможностью перехода на работу со сжиженным газом;
-
регулируемая газовая арматура для установки необходимой мощности;
-
электронный розжиг от батареек. Включение водонагревателя происходит автоматически при открытии водопроводного крана;
-
водяная арматура изготовлена из усиленного стекловолокном полиамида, передаваемого впоследствии на 100% вторичную переработку;
-
раздельная регулировка мощности и максимального расхода воды;
-
oбеспечение постоянного протока воды при переменном давлении напора воды;
-
ионизационный контроль пламени;
-
ограничитель температуры на выходе горячей воды;
-
встроенное устройство контроля тяги.
Панель управления в составе:
-
регулятора мощности;
-
регулятора температуры (расхода) воды;
-
выключателя / индикатора состояния батареи;
-
индикатора состояния горелки..
Функции автоматики:
-
модуляция мощности в зависимости от расхода воды;
-
автоматический регулятор расхода воды для поддержания температуры воды при изменениях давления в водопроводе;
-
индикация состояний водонагревателя.
Рабочие параметры:
-
минимальное рабочее давление контура ГВС при регуляторе расхода газа в крайнем правом положении:
-для WR 10-2 B, WR 13-2 B – 0,1 бар;
-для WR 15-2 B – 0,2 бар.
-
максимальное рабочее давление контура ГВС 12,0 бар;
-
температура приготовления ГВС: минимальная 35ºC, максимальная 60ºC.
Технические характеристики:
- производительность: 15 л/мин;
- мощность: 7 - 26,2 кВт;
- КПД: 88,3 %;
- тип теплообменника: медный;
- расход ГВС при Т=50ºС: 2-7,5;
- расход ГВС при Т=25ºС: 4-15;
- мин. давление подачи газа: 13 мбар;
- расход природного газа: 0,86-3,2 м3/ч;
- способ отвода газов (CO): камин;
- тип розжига: электро;
- масса: 16 кг.

(нажмите, чтобы увеличить)
|

20800 грн. |